18944225536
搜 索
首页
关于我们
公司简介
组织架构
资质证照
案例展示
办公空间
教育机构
餐饮空间
厂房车间
商业空间
酒店宾馆
商场超市
医院诊所
休闲娱乐
服务优势
装修资讯
公司资讯
行业资讯
装修知识
VR体验馆
联系我们
合作品牌
在线报价
当前位置:
网站主页
>
案例展示
>
餐饮空间
>
案例类型
餐饮空间
案例面积
100~300㎡
案例区域
常熟市
主设计师
徐烟玲
案例介绍
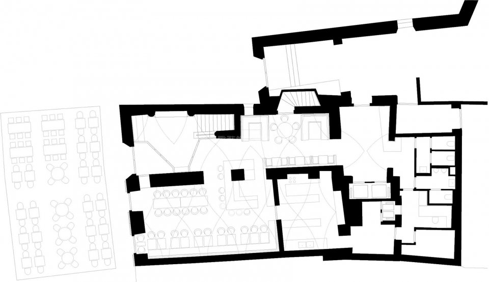
项目名称:食家族餐厅装修设计
项目面积:170平米
装修风格:复古
施工周期:30天
设计机构:苏州今和建筑装饰设计有限公司
施工单位:苏州今和建筑装饰设计有限公司
项目简介:将21世纪室内美学带入餐厅空间,在突显12世纪城市标志性历史建筑特征的同时,对室内进行现代化的更新,让餐厅焕然一新。
您的称呼
装修类型
装修面积
手机号码
立 即 领 取 200 元 装 修 红 包
每天仅限前20名咨询客户
相关案例
波希米亚风咖啡厅装修设计效果图
查看详情
餐厅简约风
查看详情
精品火锅店装修
查看详情
精品酒店餐厅装修设计
查看详情
×
Close
信息登记
提交
按此要求装修多少钱
10秒获取装修报价清单
温馨提示:报价清单将发送到您的手机
装修预算材料清单
主材费: ?元
辅材费: ?元
人工费: ?元
软装费: ?元(参考价)
立即
计算
项目面积:170平米
装修风格:复古
施工周期:30天
设计机构:苏州今和建筑装饰设计有限公司
施工单位:苏州今和建筑装饰设计有限公司
项目简介:将21世纪室内美学带入餐厅空间,在突显12世纪城市标志性历史建筑特征的同时,对室内进行现代化的更新,让餐厅焕然一新。