18944225536
搜 索
首页
关于我们
公司简介
组织架构
资质证照
案例展示
办公空间
教育机构
餐饮空间
厂房车间
商业空间
酒店宾馆
商场超市
医院诊所
休闲娱乐
服务优势
装修资讯
公司资讯
行业资讯
装修知识
VR体验馆
联系我们
合作品牌
在线报价
当前位置:
网站主页
>
案例展示
>
餐饮空间
>
案例类型
餐饮空间
案例面积
100~300㎡
案例区域
工业园区
主设计师
葛志杰
案例介绍
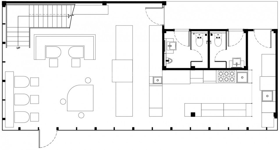
项目名称:咖啡厅
项目面积:100平米
装修风格:现代、工业风
施工周期:30天
设计机构:苏州今和建筑装饰设计有限公司
施工单位:苏州今和建筑装饰设计有限公司
项目简介:简约的设计风格逐渐成为主流,特别是咖啡厅设计上,以人为本, 使空间与环境相结合。
天然橡木和深灰色砖材被用作室内空间的主要材料,带来一种和谐而充满美感的对比。橡木的温馨气息与灰色砖材相得益彰,后者为吧台和一层的墙壁带来独特的肌理,同时也为整个空间赋予了精致的细节及空间特征。
室内主要使用了天然橡木和深灰色砖材
室内家具被布置在开放式的平面中,一层和二层的陈设有所变化,为的是提供不同种类的就座方式,使顾客可以根据自身的喜好和用餐习惯来选择桌椅。
您的称呼
装修类型
装修面积
手机号码
立 即 领 取 200 元 装 修 红 包
每天仅限前20名咨询客户
相关案例
波希米亚风咖啡厅装修设计效果图
查看详情
餐厅简约风
查看详情
精品火锅店装修
查看详情
精品酒店餐厅装修设计
查看详情
×
Close
信息登记
提交
按此要求装修多少钱
10秒获取装修报价清单
温馨提示:报价清单将发送到您的手机
装修预算材料清单
主材费: ?元
辅材费: ?元
人工费: ?元
软装费: ?元(参考价)
立即
计算
项目面积:100平米
装修风格:现代、工业风
施工周期:30天
设计机构:苏州今和建筑装饰设计有限公司
施工单位:苏州今和建筑装饰设计有限公司
项目简介:简约的设计风格逐渐成为主流,特别是咖啡厅设计上,以人为本, 使空间与环境相结合。
天然橡木和深灰色砖材被用作室内空间的主要材料,带来一种和谐而充满美感的对比。橡木的温馨气息与灰色砖材相得益彰,后者为吧台和一层的墙壁带来独特的肌理,同时也为整个空间赋予了精致的细节及空间特征。
室内主要使用了天然橡木和深灰色砖材
室内家具被布置在开放式的平面中,一层和二层的陈设有所变化,为的是提供不同种类的就座方式,使顾客可以根据自身的喜好和用餐习惯来选择桌椅。