18944225536
搜 索
首页
关于我们
公司简介
组织架构
资质证照
案例展示
办公空间
教育机构
餐饮空间
厂房车间
商业空间
酒店宾馆
商场超市
医院诊所
休闲娱乐
服务优势
装修资讯
公司资讯
行业资讯
装修知识
VR体验馆
联系我们
合作品牌
在线报价
当前位置:
网站主页
>
案例展示
>
商业空间
>
案例类型
商业空间
案例面积
300~500㎡
案例区域
相城区
主设计师
曹雁秋
案例介绍
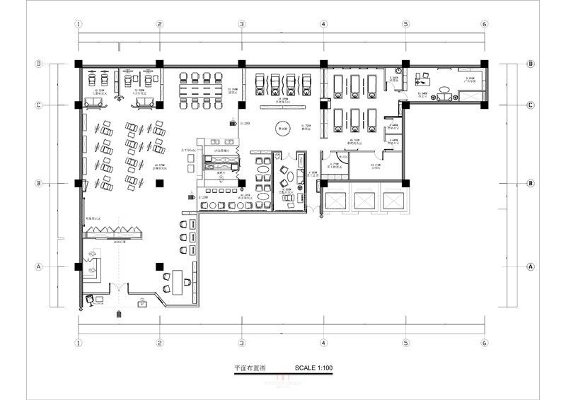
项目名称:高级美发厅装修设计
项目面积:420平米
装修风格:欧美怀旧风
设计机构:苏州今和建筑装饰设计有限公司
施工单位:苏州今和建筑装饰设计有限公司
项目用材:炭烧木 文化石 白色/红色文化砖 木地板 水曲柳双面板
项目说明:设计倾向欧美怀旧工业风,给人营造咖啡店般的轻松休闲及舒适感!
您的称呼
装修类型
装修面积
手机号码
立 即 领 取 200 元 装 修 红 包
每天仅限前20名咨询客户
相关案例
ECACA服装专卖店装修
查看详情
潮牌女装店
查看详情
迪柯尼男装专卖店装修
查看详情
儿童摄影店装修
查看详情
×
Close
信息登记
提交
按此要求装修多少钱
10秒获取装修报价清单
温馨提示:报价清单将发送到您的手机
装修预算材料清单
主材费: ?元
辅材费: ?元
人工费: ?元
软装费: ?元(参考价)
立即
计算
项目面积:420平米
装修风格:欧美怀旧风
设计机构:苏州今和建筑装饰设计有限公司
施工单位:苏州今和建筑装饰设计有限公司
项目用材:炭烧木 文化石 白色/红色文化砖 木地板 水曲柳双面板
项目说明:设计倾向欧美怀旧工业风,给人营造咖啡店般的轻松休闲及舒适感!