18944225536
搜 索
首页
关于我们
公司简介
组织架构
资质证照
案例展示
办公空间
教育机构
餐饮空间
厂房车间
商业空间
酒店宾馆
商场超市
医院诊所
休闲娱乐
服务优势
装修资讯
公司资讯
行业资讯
装修知识
VR体验馆
联系我们
合作品牌
在线报价
当前位置:
网站主页
>
案例展示
>
商业空间
>
案例类型
商业空间
案例面积
100㎡以下
案例区域
姑苏区
主设计师
卢继康
案例介绍
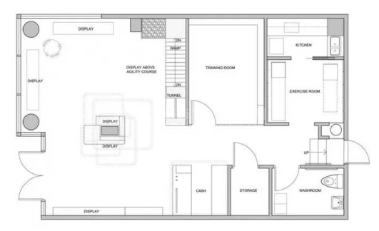
项目名称:康宁宠物店装修设计
项目面积:96平米
装修风格:现代风
施工周期:28天
设计机构:苏州今和建筑装饰设计有限公司
施工单位:苏州今和建筑装饰设计有限公司
项目介绍:做好宠物店装修相应的规划和涉及对于宠物店经营中长遇到的一些问题一定要解决好防止宠物店经营返工而引起的装修成本浪费。
用木色和白色为人和宠物都营造一种温暖静谧的环境氛围,消减宠物的紧张情绪。
宠物店要省钱要根据宠物店的具体情况进行具体分析因为每个店铺的具体情况和房屋类型都是不一样的所以在装修店铺的时候这个是有特殊性的。
您的称呼
装修类型
装修面积
手机号码
立 即 领 取 200 元 装 修 红 包
每天仅限前20名咨询客户
相关案例
ECACA服装专卖店装修
查看详情
潮牌女装店
查看详情
迪柯尼男装专卖店装修
查看详情
儿童摄影店装修
查看详情
×
Close
信息登记
提交
按此要求装修多少钱
10秒获取装修报价清单
温馨提示:报价清单将发送到您的手机
装修预算材料清单
主材费: ?元
辅材费: ?元
人工费: ?元
软装费: ?元(参考价)
立即
计算
项目面积:96平米
装修风格:现代风
施工周期:28天
设计机构:苏州今和建筑装饰设计有限公司
施工单位:苏州今和建筑装饰设计有限公司
项目介绍:做好宠物店装修相应的规划和涉及对于宠物店经营中长遇到的一些问题一定要解决好防止宠物店经营返工而引起的装修成本浪费。
用木色和白色为人和宠物都营造一种温暖静谧的环境氛围,消减宠物的紧张情绪。
宠物店要省钱要根据宠物店的具体情况进行具体分析因为每个店铺的具体情况和房屋类型都是不一样的所以在装修店铺的时候这个是有特殊性的。