18944225536
搜 索
首页
关于我们
公司简介
组织架构
资质证照
案例展示
办公空间
教育机构
餐饮空间
厂房车间
商业空间
酒店宾馆
商场超市
医院诊所
休闲娱乐
服务优势
装修资讯
公司资讯
行业资讯
装修知识
VR体验馆
联系我们
合作品牌
在线报价
当前位置:
网站主页
>
案例展示
>
商业空间
>
案例类型
商业空间
案例面积
100㎡以下
案例区域
相城区
主设计师
陈航攀
案例介绍
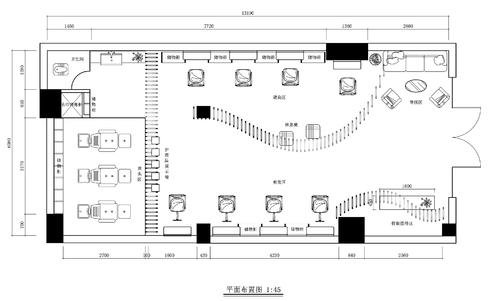
项目名称:理发店装修案例
项目面积:60平米
装修风格:现代、工业风
施工周期:30天
设计机构:苏州今和建筑装饰设计有限公司
施工单位:苏州今和建筑装饰设计有限公司
项目介绍:面宽6米的发廊,空间机能上除了满足商业空间必须的流畅动线与足够的座位,室内设计上以大自然常见的元素作为核心设计。
发廊入口处的沙发区,采用黑白灰的配色和弧形的展示空间。造型天花板的丰富层次是花朵简化后的线条,花瓣的有机交叠呼之欲出。
有别于多数发廊将冲洗区隐藏在最不显目的角落,我们特地将冲洗区设在空间中央、并以冲孔板包覆,犹如一颗有气孔的偌大巨岩作为店面的视觉主体,藉由铁板本身孔洞的透光性取代传统洗发区域常见的拉帘,让顾客在冲洗时能置身于光线微弱的空间,体验片刻的静谧舒心。悬空的茶水柜设计不但提供业者与顾客流畅的动线,更呼应美发般的视觉轻盈感,放意畅怀。
您的称呼
装修类型
装修面积
手机号码
立 即 领 取 200 元 装 修 红 包
每天仅限前20名咨询客户
相关案例
ECACA服装专卖店装修
查看详情
潮牌女装店
查看详情
迪柯尼男装专卖店装修
查看详情
儿童摄影店装修
查看详情
×
Close
信息登记
提交
按此要求装修多少钱
10秒获取装修报价清单
温馨提示:报价清单将发送到您的手机
装修预算材料清单
主材费: ?元
辅材费: ?元
人工费: ?元
软装费: ?元(参考价)
立即
计算
项目面积:60平米
装修风格:现代、工业风
施工周期:30天
设计机构:苏州今和建筑装饰设计有限公司
施工单位:苏州今和建筑装饰设计有限公司
项目介绍:面宽6米的发廊,空间机能上除了满足商业空间必须的流畅动线与足够的座位,室内设计上以大自然常见的元素作为核心设计。
发廊入口处的沙发区,采用黑白灰的配色和弧形的展示空间。造型天花板的丰富层次是花朵简化后的线条,花瓣的有机交叠呼之欲出。
有别于多数发廊将冲洗区隐藏在最不显目的角落,我们特地将冲洗区设在空间中央、并以冲孔板包覆,犹如一颗有气孔的偌大巨岩作为店面的视觉主体,藉由铁板本身孔洞的透光性取代传统洗发区域常见的拉帘,让顾客在冲洗时能置身于光线微弱的空间,体验片刻的静谧舒心。悬空的茶水柜设计不但提供业者与顾客流畅的动线,更呼应美发般的视觉轻盈感,放意畅怀。