18944225536
搜 索
首页
关于我们
公司简介
组织架构
资质证照
案例展示
办公空间
教育机构
餐饮空间
厂房车间
商业空间
酒店宾馆
商场超市
医院诊所
休闲娱乐
服务优势
装修资讯
公司资讯
行业资讯
装修知识
VR体验馆
联系我们
合作品牌
在线报价
当前位置:
网站主页
>
案例展示
>
休闲娱乐
>
案例类型
休闲娱乐
案例面积
700~900㎡
案例区域
虎丘区
主设计师
陈航攀
案例介绍
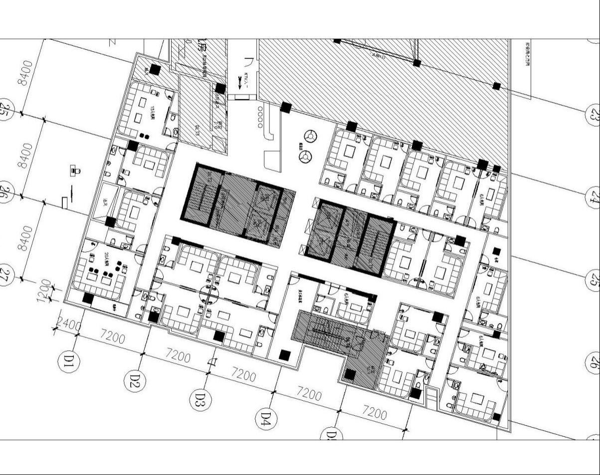
项目名称: KTV装修
项目面积: 700平米
施工周期: 60天
设计机构:苏州今和建筑装饰设计有限公司
施工单位:苏州今和建筑装饰设计有限公司
项目简介:光与色集合成的梦境,带着令人怦然心动的魔力,以魅惑的蓝紫色敲开了一场时空之旅的大门。一直以来,设计师徐麟有意识地从超前的角度去重新审视娱乐空间,不仅考虑美学,还有理念与手法的转变。取代围绕展陈为中心铺展的框架与描述,以光的路径体验为导向展开叙事,让光与影本身形成一组有趣的组合,以神秘的方式打开感官探寻的通道,却又拒绝直白的表述,构成引人入胜的沉浸式感官之旅。
您的称呼
装修类型
装修面积
手机号码
立 即 领 取 200 元 装 修 红 包
每天仅限前20名咨询客户
相关案例
酒吧装修
查看详情
酒吧装修效果图
查看详情
“周末之家”酒吧
查看详情
电竞馆
查看详情
×
Close
信息登记
提交
按此要求装修多少钱
10秒获取装修报价清单
温馨提示:报价清单将发送到您的手机
装修预算材料清单
主材费: ?元
辅材费: ?元
人工费: ?元
软装费: ?元(参考价)
立即
计算
项目面积: 700平米
施工周期: 60天
设计机构:苏州今和建筑装饰设计有限公司
施工单位:苏州今和建筑装饰设计有限公司
项目简介:光与色集合成的梦境,带着令人怦然心动的魔力,以魅惑的蓝紫色敲开了一场时空之旅的大门。一直以来,设计师徐麟有意识地从超前的角度去重新审视娱乐空间,不仅考虑美学,还有理念与手法的转变。取代围绕展陈为中心铺展的框架与描述,以光的路径体验为导向展开叙事,让光与影本身形成一组有趣的组合,以神秘的方式打开感官探寻的通道,却又拒绝直白的表述,构成引人入胜的沉浸式感官之旅。